
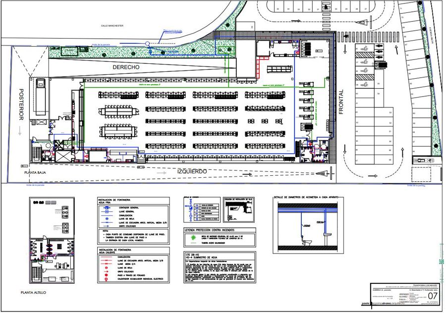
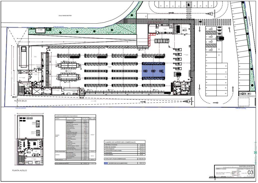
Una puesta en marcha que avanzaba el pasado miércoles el Boletín Oficial de la Provincia con la publicación de la licencia ambiental y que este jueves ya se conocen más datos. Así, de las 87 plazas de aparcamiento, 84 estarán destinadas a vehículos de 4 ruedas y otras 3 destinadas a motos. Además, el proyecto de construcción del mismo apunta que el acceso rodado al supermercado se efectuará desde la Avenida de Milán, mientras que los pasos desde la calle Manchester ser usarán para carga y descarga.
Además, la superficie de venta se enmarcará en 1.592,46 metros cuadrados, de los cuales finalmente serán 1.103,91 metros los que se dejarán libres para el conjunto de clientes que accedan a las instalaciones, ya que la diferencia entre las dos referencias métricas responderá a la ocupación de objetos como estanterías, mostrador y cajas. Incluso se instalará en la cubierta un aparato para generar energía eléctrica renovable, concretamente solar, para autoconsumo.
Cabe recordar que en la publicación del miércoles, 9 de noviembre, en el BOP se hacía público, haciendo constar que durante el plazo de 10 días hábiles contados a partir del siguiente a la publicación de este anuncio en el BOP , la solicitud y el proyecto presentado podrán ser examinados en las oficinas del ayuntamiento de Ponferrada (Servicio de actividades) sitas en pza. del ayuntamiento, 1 de esta localidad, en horario de 09:00 a 14:00 h., y en la página web del ayuntamiento de Ponferrada.
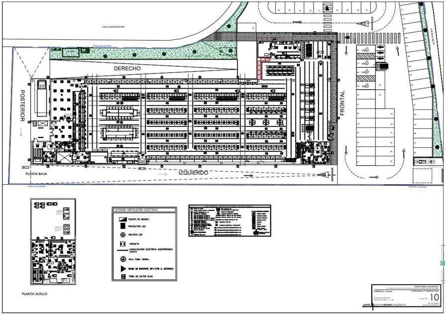
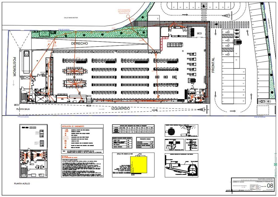
CONSULTA TODOS LOS PLANOS











