La sesión plenaria del Ayuntamiento de Ponferrada de este viernes aprobó con 22 votos a favor (PP, CB y PSOE) y dos abstenciones (VOX) la bonificación del I.C.I.O. a Somacyl para las obras de construcción de 20 viviendas colaborativas en calle Andrés Viloria. La bonificación del ICIO (Impuesto sobre Construcciones, Instalaciones y Obras) es una reducción del impuesto que los ayuntamientos pueden ofrecer para incentivar determinadas obras e instalaciones. Es un beneficio fiscal voluntario que puede ser regulado en la ordenanza fiscal municipal.
Esta aprobación supone un paso más para que den comienzo esas obras cuyos plazos parece que ya comienzan a dilatarse. Este punto del orden del día se justificaba como un mero trámite siguiendo los informes de los técnicos del Ayuntamiento para esa reducción de los impuestos a la empresa constructora.

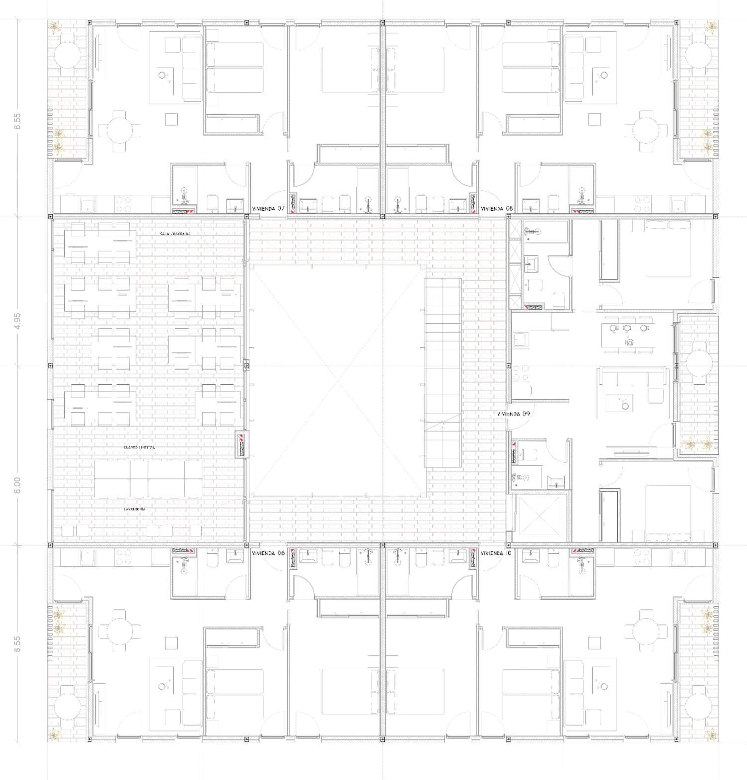
Recordemos que a finales de febrero, la Junta de Gobierno del Ayuntamiento de Ponferrada autorizó a la mercantil SOMACYL para el comienzo de las obras de construcción de edificio destinado a 20 viviendas colaborativas para jóvenes en régimen de protección, destinadas a alquiler social que se ubicarán en la Calle Andrés Viloria. Las 20 viviendas tienen un presupuesto de 2.472.309,39 euros y un plazo de ejecución de 22,5 meses, y la obra ya está adjudicada.
En cuanto a sus características, las viviendas cuentan con una superficie útil máxima de 60 m², cuentan con salón-cocina, dos dormitorios, dos baños y terraza. Además, el edificio contará con zonas comunes destinadas a coworking, lavandería y descanso.
La licencia fija como plazo de iniciación de las obras seis meses desde la notificación de la resolución municipal, que tuvo lugar hace casi dos meses, y como plazo de finalización 24 meses.

Una vez ejecutadas, estas viviendas, estarán en disposición de formar parte del parque público de viviendas en alquiler que gestiona SOMACYL.
Esta actuación, que cuenta con ayudas PRTR y con financiación del Banco Europeo de Inversiones, se enmarca en el Programa TUYA, cuyo objetivo es construir viviendas en venta y en alquiler destinadas, fundamentalmente, a los jóvenes menores de 36 años de Castilla y León. En concreto, en la provincia de León está en marcha el desarrollo de 236 viviendas, tanto para alquiler como para venta, en los municipios de León (126), Carracedelo (32), Valencia de Don Juan (28), Ponferrada (20), Villadangos del Páramo (14), Astorga (10) y Santa Marina del Rey (6).
Entérate de las últimas noticias y avisos importantes haciéndote seguidor de nuestro canal en WhatsApp. Entra en este enlace y activa las notificaciones del Canal
¿Has sido testigo de algún suceso o accidente? Tu foto o video tienen valor para nosotros (€). Accede al Cuestionario de envío (sólo para cuando ocurre) y Condiciones