
La Junta de Castilla y León, a través de la Sociedad Pública de Infraestructuras y Medio Ambiente (SOMACYL), saca a licitación 32 viviendas de protección pública en Posada del Bierzo, en el municipio de Carracedelo, por un importe de 3.458.135,59 euros (IVA no incluido), según publica este lunes la Plataforma de Contratación del Sector Público.
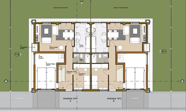
El objeto de la actuación es llevar a cabo la construcción de viviendas protegida en 3 parcelas colindantes, situados en la Avenida de los Jardines en Posada del Bierzo. Son 3 parcelas de 1.092; 2.796 y 2.310 m2 cada una (es decir que se va a actuar sobre un total de 6.198 m2) donde se van a desarrollar 4, 16 y 12 viviendas respectivamente, de tipología unifamiliar adosada de 2 alturas (planta baja + planta 1ª) de superficie 88,40 m2 útiles de vivienda más 17 m2 de garaje y un jardín de uso privativo de entre 70 y 80 m2.
El proceso de promoción es proporcional a la demanda y la selección de los demandantes que cumplan las condiciones de acceso a una vivienda de protección se realizará por el Ayuntamiento de la localidad, considerando, entre otros, los ingresos acreditados por el demandante y que éste no disponga de otra vivienda.

Aquellos demandantes con edad inferior a 35 años tendrán una reducción del 20% en el precio de la vivienda.
Este anuncio llega después de que durante el fin de semana saltase la noticia de que la convocatoria de las elecciones autonómicas del 13 de febrero han pillado a la Junta con la tramitación iniciada de una quincena de nuevas promociones con más de 260 viviendas públicas en distintas zonas de Castilla y León, por lo que tras la cita con las urnas será el próximo Gobierno autonómico el encargado de gestionar estos proyectos previstos en su mayoría en el medio rural. De este modo el gobierno autonómico ha acelerado la tramitación para licitar estas 32 viviendas públicas en Carracedelo.